빌라 라로슈를 답사하며 건축 디자인을 공부한 것에 감사했다. 비록 건축 디자인을 생업으로 하고 있지 않고 단순한 지적 유희를 추구함에도 불구하고 말이다.
나는 건축 디자인을 공부하며 특히 20세기의 중반의 (흔히 말하는 미드센츄리) 건축에 매료되었다. 20세기는 현대 건축의 새로운 장을 열어 젖힌 시기이며 현대 건축의 3대 거장으로 불리는 르 코르뷔지에, 미스 반 데어 로에, 프랭크 로이드 라이트가 현대 건축의 기반을 닦고 이에 영향을 받은 수많은 건축가들이 현대 건축을 꽃피운 시기이다. 물론 이 시기에 정립된 국제양식 건축이 세계화에 발맞추어 전 세계에 도배되다시피 한 양상을 비판하는 시각도 있으나 이는 경제성과 맞물린 것이지 특정 건축 집단의 미학이 숭배됐기 때문은 아니다.
르 코르뷔지에의 대표작
현대 건축에서 가장 큰 영향을 끼친 인물은 의심의 여지없이 르 코르뷔지에이고 그의 대표 건축물 하나를 답사한다면 파리 교외 푸아시에 1931년 지어진 빌라 사보아일 것이다. 이는 르 코르뷔지에가 자신의 저서 <건축을 향하여, 1923>에서 표명한 새로운 건축의 다섯 가지 요소를 집대성한 작품이기 때문이다.
다만 4박 일정으로 파리 신혼여행을 떠난 남편의 입장에서 필자가 하루를 투자해 빌라 사보아를 둘러보는 일은 건축에 큰 관심이 없는 아내에게 이해를 구하기 힘든 일이었고, 그 대안으로 파리 도심에서 2시간 일정으로 답사할 수 있는 빌라 라로슈를 다녀왔다. 이 글은 해당 답사를 기록한 것이다.

파리 메트로 9호선 퐁데세브르 Pont de Sèvres 역에서 내려 구글맵을 따라 걷다보니 빌라 라로슈에 위치한 파운데이션 르 코르뷔지에 표지판이 보인다.

빌라 라로슈를 찾아가는 길 이름은 독일의 시인 하인리히 하이네의 이름을 땄서 지어졌다. 그는 프랑스 7월 혁명에 감동되어 파리로 이주해 민주주의를 위한 논문과 아름다운 시를 썼다고. 파리는 골목 길 하나에서도 그 역사가 느껴진다.

한국에서 대단지 아파트별로 외부인의 출입을 막는 입구가 있는데, 유럽 고급 주택가에는 주택 구역을 묶어서 프라이빗 로드와 출입구를 볼 수 있다.

철문에 닥터 블랑쉐 스퀘어 프라이빗 로드임을 알리는 표식이 붙어 있다.

한국에서는 빌라 라로슈라고 많이 알려져 있는데 미국 영어의 영향이 아닐까 싶다. 프랑스에서는 메종 라 로슈로 불린다. 빌라 라로슈의 운영 시간은 오전 10시부터 오후 6시까지이며, 일요일과 월요일은 닫는다.
갤러리 겸 주택 빌라 라로슈
빌라 라로슈는 도심에서 벗어난 파리 16구 지역에 르 코르뷔지에가 <새로운 건축, 1923>을 집필하는 시기와 겹쳐 설계한 것으로 보이고, 1925년 완공한 갤러리 겸 주택이다. 갤러리 겸 주택이라 함은 건축주가 자신이 컬렉션한 작품을 보관 전시하는 한편 그곳에서 머물 수 있도록 요구한 건축 공간이다. 르 코르뷔지에는 당시 주택 공간에 막 쓰이기 시작한 소재인 철근 콘크리트를 이용해 자유로운 평면과 입면을 지닌 공간을 설계했고 이를 통해 새로운 건축이 지닌 다섯 가지 요소를 구체화하였다.

빌라 라로슈는 닥터 블랑쉐 스퀘어 진입로를 따라 들어가면 막다른 길에 위치한다.

멀리 하얀색 주택이 보인다. 별다를 것 없어 보이는 외관이지만, 잘 보존된 고풍스런 파리 도심의 건물들과 비교하면 눈에 띄게 단순하여 오히려 돋보인다.

르 코르뷔지에가 내세운 새로운 건축의 다섯 가지 요소 중 하나인 가로로 긴 창이 보인다.

진입로에서 바라본 방향으로 정면이 갤러리이고 우측이 주거 공간으로, 주택 평면은 'ㄱ'자 모양으로 꺽여 있다.

빌라 라로슈 마당은 회색 펜스로 보호되고 있다. 펜스에 빌라 라로슈 내부에서 진행되는 전시 안내가 붙어 있다. 내가 방문한 당시에는 프랑스 산업 디자이너 마탈리 크라셋 Matali Crasset 의 전시가 진행 중이었다.

빌라 라로슈를 비롯한 17개의 르 코르뷔지에 건축 작품이 2016년 7월 유네스코 문화재에 등록되어 보호받고 있다.
새로운 건축의 5 요소
새로운 건축의 다섯 가지 요소는 필로티, 옥상정원, 열린 평면, 자유로운 입면, 가로로 긴 창이다. 요즘 주택, 특히 한국의 다세대 빌라 주택에서 흔히 보이는 특징이다. 벽돌로 벽을 쌓아 하중을 지탱하는 방식이 아닌 튼튼한 철근 콘크리트 기둥으로 하중을 지탱하므로 가능해진 100년 전 당시로서는 실로 새로운 건축의 요소라 할 수 있다.
건축적 산책로와 경사로
새로운 건축의 다섯 가지 요소와 함께 르 코르뷔지에가 중요하게 여겼던 건축적 개념은 건축적 산책로이다. 이는 르 코르뷔지에가 빌라 라로슈와 빌라 사보아를 걷는 경험을 설명할 때 사용한 개념으로, 그가 건축을 물성이 아닌 공간 경험의 총체로 인식했다는 것을 알 수 있다. 이를 잘 드러내는 건축 요소는 실내 경사로로 급격한 수직 이동 수단인 계단과 달리 평면을 자연스럽게 이어주며 통합된 공간 경험을 제공한다.
빌라 라로슈 감상평
사실 새로운 건축의 5요소와 건축적 산책로의 개념은 이미 내가 평생에 걸쳐 거주해온 아파트 및 빌라에서 경험해 온 건축 요소들이었기 때문에 빌라 라로슈를 답사하는 동안 이들이 새롭지 않았고 큰 감흥도 없었다. 다만 르 코르뷔지에가 내세운 새로운 건축의 5요소와 건축적 산책로 개념이 투영된 아마도 최초의 주택을 걸으며 살펴본다는 사실 자체에 나는 매료되었고 여행을 충분히 즐길 수 있음에 감사했다. 본격적인 답사기는 공간별로 구분하여 아래 사진과 함께 첨부한다.

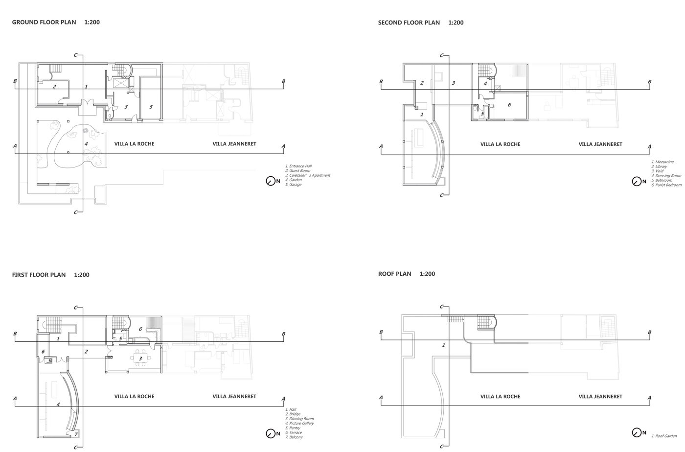
빌라 라로슈의 동선은 사진으로만 이해하기 어려우니 빠짐 없이 이해하기 위해서는 위 첨부한 평면도를 띄어 놓고 비교하며 보는 걸 추천한다.
야외 정원과 필로티


빌라 라로슈의 필로티 기둥이 지금 보아도 매우 얇고 세련되었다.



필로티 천장부의 마감 디테일이 독특한데 어떤 이유가 있는 디테일인지 의아했다.


필로티 외부 정원을 둘러보고 내부로 들어간다.
1층 중앙 홀


입구 문을 열고 들어가면 중앙 홀로 티켓부스와 기념품샵이 있다. 입장료는 성인 1인당 10유로 (약 15,000원) 이며 학생은 할인받을 수 있다.



기념품 샵에 다양한 엽서와 책자, 에코백이 있었으나 손이 가진 않았다. 빌라 라로슈 방문을 기념할 만한 기념품이 보이지 않아 아쉬웠다.
2층 갤러리

계단을 오르면 중앙 홀을 내려다 볼 수 있도록 공간이 의도적으로 깊이 설계된 것을 볼 수 있다. 중앙홀에서 볼 때 해당부분에서 볼륨감을 느낄 수 있다.

먼 발치에 보이는 다이닝룸과 그곳에 놓인 토넷의자가 자연광에 비치는 모습이 아름답다. 다이닝룸은 갤러리를 먼저 둘러본 후에 가기로 한다.




르 코르뷔지에가 디자인한 LC 시리즈 가구는 대부분 빌라 라로슈가 지어진 이후에 완성되었으니, 이 소파는 재단 측에서 관람객이 빌라 라로슈 관람 시 함께 체험해 보라는 의도로 설치한 듯하다. 빈티지의 끝을 보여주는데 얼마나 많은 사람들이 앉았던 걸까.




간이 침대 뒤편으로는 평면도 상으로 테라스가 있다고 한다. 테라스로 가는 문을 막고 있는 저 간이 침대는 왜 설치된 걸까? 재미난 이유가 있을 것만 같은데 직원이 1층 홀에서만 머물고 있어서 편히 물어보지 못했다.



테라스는 단체 관람 시 도슨트 투어 때 소개를 하는 듯 하지만, 일반 관람 시에 닫혀 있다. 아마도 안전 상의 이유일 것이다.
3층 서재

빌라 라로슈의 하이라이트는 아마도 갤러리 2층에서 3층으로 완만하게 오르는 경사로가 아닐까 싶다. 우측으로 볼록하게 휘어져 오르며 갤러리 중앙의 조각 전시품을 좀 더 입체적으로 볼 수 있도록 한 것으로 보인다. 르 코르뷔지에가 말한 건축적 산책로를 빌라 라로슈에서 가장 잘 드러내는 장치이다.


3층 서재로 가는 입구 앞에 메자닌 형태로 갤러리와 서재 사이의 전이 공간이 마련되어 있다. 정확한 해당 공간의 용도는 모르겠지만, 현재는 전시 공간으로 쓰인다.


서재에는 책을 보관할 수 있는 낮은 책장이 있고 천창이 있는 것이 특징이다.

천창을 열수 있도록 문고리가 있다. 낙엽 등이 쌓이면 청소할 수 있도록 한 것일까.. 어떤 장치가 되어 있겠지만 비가 오면 비가 새지는 않을까 의문이다. 참고로 옥상정원은 주거공간 상부에만 있고, 갤러리에는 지붕만 있다.




3층 서재에는 계단이 없어서 외부로 나가려면 경사로를 따라 2층 갤러리를 통해서만 가능하다. 해당 서재의 용도는 개인적이기 보다 작품을 전시의 연장선으로서 아트북이나 카탈로그를 보관했던 건 아니었을까 싶다.
2층 다이닝룸

갤러리에서 다이닝룸으로 곧장 연결되는 다리가 있는 것이 특징이다. 호스트가 게스트에게 작품을 보여준 뒤 식사를 즐겼던 것으로 보인다.

2층 다리 벽면의 전체 창으로 중앙 홀은 언제나 환하다.


다이닝룸에는 4명 정도가 앉을 수 있는 식탁이 있다. 해당 식탁은 빌라 라로슈에 설치하기 위해 르 코르뷔지에가 디자인한 LC12 테이블이고 의자는 가구 제조사 토넷 Thonet 과 협업해 만든 No.B9 이다. 그리 어울리는 조합은 아니다.


의자에 솔방울이 하나씩 올려져 있는데 아마도 그곳에 앉지 말라는 의미인 것 같다.

갤러리 창문을 코너를 따라 길게 내어 개방감을 준다. 르 코르뷔지에가 새로운 건축의 다섯 가지 요소 중 하나로 말한 가로로 긴 창이다.

창문 프레임이 아주 얇고 세련되어 보이지만 단열이 잘 되지 않았을 것이다. 당시 건축주가 집이 너무 춥다고 말했다는 걸 어느 디자인 잡지 글에서 본 것 같다.


2층 다이닝룸 옆방에는 간이 주방이 있다. 1층 메인 주방에서 도르레로 물건을 올려 창문으로 전달할 수 있도록 설계되었다. 4명이 앉을 수 있는 다이닝룸에 요리에 서빙까지 하는 인원을 두다니 보통 호사스러운 게 아니다.




중앙홀 너머로 보이는 2층 다리와 계단참의 볼륨감은 다소 밑밑할 수 있는 중앙홀 공간을 입체감 있게 만든다. 갤러리 경사로와 함께 빌라 라로슈 감상의 하이라이트라 생각된다.
3층 베드룸

3층 복도에는 그물 철장이 쳐져 있다. 난간이 낮아서 안전 상의 이유로 설치한 듯하지만 미관상은 좋지 않다.




일반적으로 벽과 천장이 만나는 부분의 처리가 곤란하여 몰딩을 두르는데 빌라 라로슈는 반지름값을 주어 완만하게 처리하였다. 아주 작은 디테일이지만 공간이 더 아늑하게 느껴진다.

드레싱룸 건너편으로 보이는 집은 쟌느레 하우스이다. (빌라 라로슈는 르 코르뷔지에와 그의 삼촌인 피에르 쟌느레가 함께 건축한 것이며, 이 둘은 향후 건축은 물론 가구 디자인도 왕성하게 협업한다.) 쟌느레 하우는 빌라 라로슈와 함께 지어진 독립된 주택인데 현재 파운데이션 르 코르뷔지에 사무실로 쓰인다고 한다.

빌라 라로슈 3층 가장 깊은 곳에 침실이 있다. 현재는 르 코르뷔지에 재단의 전시 공간으로 쓰인다.




계단 난간 디자인이 마음에 든다. 장식을 최대한 줄였지만 우아한 자태를 뽑낸다.
옥상정원

후에 알게 되었는데 옥상정원은 단체관람 및 도슨트투어 시에만 개방된다고 한다. 르 코르뷔지에 작품을 답사하며 옥상 정원을 볼 수 없다니? 담당 직원에게 옥상 정원을 둘러볼 수 있을까 물었더니 단체관람 시에만 볼 수 있다는 원칙을 깨고 문을 열어 주었다.

옥상 정원의 완전한 내부까지는 들어가 볼 수 없었다.

옥상정원에 무릎 높이의 난간이 있지만, 이를 통해 옆 주택인 쟌느레 하우스와 연결되는 듯하다. 직원의 설명에 따르면 해당 쟌느레 하우스가 보이는 면에 파티션은 추후에 설치된 것이라 한다. 쟌느레 하우스에 거주하던 여성이 나체로 일광욕을 즐겨서 이를 시각적으로 차단하기 위함이었다고. 어떤 의도인지 이를 원상복구하진 않았나 보다.








옥상정원 흑백사진이 걸린 프레임에 NEMO 라는 각인이 있는 걸 보니 르 코르뷔지에가 디자인한 액자로 보이며 현재 NEMO에서 생산 중인 것 같다. NEMO는 르 코르뷔지에가 디자인한 조명을 제작하는 브랜드로도 유명하다.


1층 관리인실 및 주방

관리인 실의 입구는 총 3개이다. 계단실에서 접근할 수 있는 문, 중앙홀에서 연결되는 문, 외부에서 연결되는 문. 동분서주 움직여야 하는 관리인의 동선을 고려한 입구 계획일 것이다. 위 사진은 계단실에서 연결되는 입구이다.


위 사진에서 좌측에 보이는 검정색 문이 외부로 연결된 문이다. 창문으로 빌라 라로슈로 접근하는 사람들을 감시할 수 있다.

주방은 관리인실에서만 드나들 수 있도록 동선이 계획되어 있다.


주방 한견에 빌트인 가구를 넣을 수 있는 공간이 마련되어 있다. 요즘으로 보면 당연히 냉장고가 들어갔을 텐데, 1920년도에 냉장고가 보편화 되었으려나? 해당 공간의 용도가 의문이다.




주방 입구에는 2층 간이 주방과 연결되는 도르레가 설치되어 있다. 1층에서 요리를 하고 2층 다이닝룸으로 올려 보내는 용도일 것이다. 다시한번, 4인용 식탁이 놓인 다이닝룸인 걸 감안하면 역시나 호사스러운 장치다.

외부 출입구는 관람객이 드나들 수 없도록 막혀 있다.

관리실과 중앙홀을 연결하는 복도 공간 한편에 화장실이 있다. 변소와 손 씻는 공간이 분리된 점이 요즘의 관점에서 세련되어 보인다. (변소는 완쪽 문을 열고 들어가야 하고, 우측으로는 중앙홀로 연결된다.)
주택을 나서며..

전시를 마치고 문밖을 나선다.



건축 디자인을 공부한 뒤로 비록 현업에 종사하진 않지만 순수히 건축 디자인에 대한 지적 호기심으로 빌라 라로슈를 답사하며, 백 년 전 르 코르뷔지에의 초기 주택 작품을 직접 경험할 수 있음에 감사했고 파리 여행의 감상에 더욱 젖어 들었다. 건축 디자인에 관심이 많은 독자라면 파리 방문 시 필히 빌라 라로슈를 답사해보길 추천한다.