경주 여행은 생애주기별로 가는 듯하다. 초등학교 때의 수학여행, 대학 시절 친구들과의 여행, 사회에 나와 혼자 떠난 여행에 이어, 이번에는 결혼 후 아내와 함께 봄맞이 여행을 떠났다. 첨성대 앞에서 다양한 연령대의 가족들이 어우러진 모습을 보며 과거의 나와 미래의 나를 동시에 보는 듯한 기분이 들었다. 경주는 대한민국 국민이라면 생애주기마다 공통된 경험을 공유하는 신비로운 도시라는 생각이 들었다. 천년 고도의 신비로움은 현재도 계속되는 걸까?
이번 여행에서 가장 기대했던 목적지는 오아르 미술관이었다. 평소 유튜브로 즐겨 보는 건축 관련 채널 '셜록현준'의 유튜버이자 유현준건축사사무소를 운영하는 건축가 유현준이 최근 설계하여 완공한 미술관이기 때문이다. 서울을 중심으로 한국의 건축 문화가 양극화된 상황에서 경주에 위치한 오아르 미술관은 가뭄 속 단비 같은 존재다. KTX를 타고 경주역에 도착하자마자 미술관으로 향했다. 경주역에서 미술관까지는 버스로 환승 없이 30분 정도 소요되었다.
오아르 미술관은 지난 4월 8일 개관과 동시에 2층에서 에가미 에츠 작가의 신작 17점을 소개하는 '지구의 울림' 전시를 개최하고 있었다. 1층 카페 한편에는 오아르 컬렉션 소장품이 상설 전시로 소개되었고, 지하 1층의 10평 남짓한 공간에서는 문경원, 전준호 작가의 설치 작품 '팬텀 가든'이 전시되고 있었다. 개인적으로는 전시 자체보다는 건축물을 경험하는 것에 주목적을 두었기에 전시에 큰 감흥을 느끼지는 못했고, 오히려 '전시 공간의 경험'이 어떠한지에 중점을 두고 관람했다.

오아르 미술관 건축 콘셉트와 감상
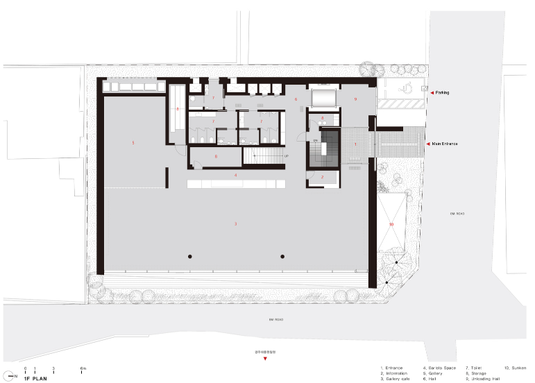
오아르 미술관 건축의 가장 큰 특징은 바로 '고분 뷰'다. 수천 년 역사를 간직한 신라 시대의 고분 곁에 미술관이 자리 잡고 있다는 사실만으로도 가슴이 벅차올랐다. 그래서 건축물 또한 '3개의 고분을 담은 미술관'이라는 콘셉트를 가지고 있다고 한다. 첫 번째 고분은 미술관 전면 유리창에 비친 고분이며, 두 번째는 건축물 내부에서 창밖으로 바라보는 고분, 마지막 세 번째는 카페 바의 뒷면 유리에 비친 고분이다. 특히 1층 카페에 앉아 있으면 마치 고분에 둘러싸인 듯한 기분을 연출하려 했던 것으로 보인다. 미술관의 1층부터 옥상, 그리고 지하 1층까지 차례로 둘러본 후 카페를 경험한 뒤에는 기대가 컸던 만큼 아쉬움도 크게 남았다. 개인적으로는 건축물을 통해 다양한 공간 경험을 하고 싶었으나, 실제로는 매우 평평하고 납작한 경험을 했다는 느낌이 들었다. 몇 가지 이유를 정리하자면 다음과 같다.
1. 장면 연출의 아쉬움
1층부터 3층까지 이어지는 동선 어디에서나 고분이 계속해서 등장한다. 물론 고분이 건축의 핵심 콘셉트이긴 하지만, 2층 기획 전시 공간만큼은 일부러 시야를 제한해 전시에 집중하게 만든 후, 1층에서 바라보는 수평적 고분 뷰와 옥상에서 내려다보는 고분 뷰를 더 극적으로 대비시켰으면 좋지 않았을까 하는 아쉬움이 있다. (현실적으로 생각하면 2층의 큰 통창을 부동산적 가치를 고려해 포기하기 어려웠을 수도 있다.) 한편, 좁고 긴 계단실을 오르며 드는 기대감과 별개로 2층에 올랐을 때와 옥상에 올랐을 때 드는 첫 장면의 감상은 '우와!'라는 느낌표가 아닌 '에?'라는 물음표가 먼저 찍힌다. 2층에 오르면 전시를 소개하면 커다란 벽(과 안내 스태프)을 마주하고, 3층에 오르면 탁 트인 고분 뷰가 아닌 시야를 가로막는 옆 건물을 마주하기 때문이다.
2. 동선 배치의 아쉬움
또 하나 아쉬움은 각 층별 프로그램의 동선이 복잡하게 얽혀 있다는 것이다. 이는 계단과 카페 공간의 배치 때문이다. 계단은 입구를 지나면 곧장 2층 전시공간으로 올라가게 배치되어 있다. 2층 전시를 보기 전에 1층 상설 전시를 먼저 보려면 카페 공간을 가로질러야 하며, 그 과정에서 카페 이용객들의 동선과 겹쳐 복잡하게 느껴진다. 또한, 2층 전시를 관람한 뒤 별도 계단실을 통해 옥상을 보고 난 뒤 지하 1층 전시로 이동할 때 2층에서 다시 엘리베이터를 이용해야 하며, 다시 1층으로 올라갈 때도 엘리베이터를 사용해야 하므로 관람의 흐름이 자연스럽게 이어지지 못하고 중간중간 끊기는 느낌이 든다. 지하 층은 대부분 사무관리 공간으로 사용되는 탓에 전시공간은 매우 협소하고 동선이 제한적일텐데, 지하는 과감히 전시를 포기하는 게 어땠을까?



비록 아쉬운 점들을 주로 기록했지만, 유명 건축가의 작품이 서울뿐만 아니라 전국 각지에 세워지고 있다는 점은 건축 문화를 사랑하는 사람으로서 매우 반가운 일이다. 앞으로 더욱 다양한 지역에서 이러한 시도가 이어지길 기대하며, 보다 상세한 감상은 아래의 사진과 함께 이어간다.

서울역에서 KTX를 타고 경주역에서 내린 뒤,
버스를 타고 서라벌사거리 황리단길에 하차
이런 곳에 미술관이 있나? 싶은 평범한 거리

미술관에서 운영하는 것으로 보이는
대형 주차장인데 평일임에도 만차였다

주차장을 마주하고 코너를 돌면 골목 끝
대릉원 일원의 푸르른 녹음이 펼쳐진다

대릉원 방향으로 걸어가다 보면 목적지인
유현준 건축가가 설계한 오아르 미술관이 있다

길을 걷다 갑작스레 등장한 오아르 미술관
대릉원 일원의 자연과 상당한 대비감을 이루는
차가운 느낌의 철제로 전면을 과감히 마감했다.
꽤나 큰 임팩트가 있고 거부감보다는
기대감이 드는 외관 첫인상이었다.

개관 직후라 그런지 입구 주변이
정리가 다소 안 되어 보였다.
무엇보다 주차 문제가 심각해 보였다.

오아르 미술관의 사이니지
자칫하면 못 보고 지나칠뻔.
로고 디자인부터 건축물까지
브랜딩의 일관성이 느껴진다.

출입구 한 편에 전면 디스플레이가 설치됐다.
대릉원 일원에서 진입할 때 잘 보이고,
시내 방면에서 진입하면 보이지 않는다.
의도적으로 대릉원 일원과의 연결성 강화에
중점을 둔 것으로 보이는 진입로 설계다.

두근두근 기대되는 마음으로
출입구에 들어선다.

지난 주 개관한 미술관 답게 입구를 따라
늘어선 축하 화분을 지나 내부로 들어서면
정면 멀리 전면 창으로 고분이 보인다.

번잡한 진입 골목을 지나 쾌적한 실내에
들어와 고분을 보니 한결 기분이 좋다.

동선을 따라 자연스럽게 내부로 들어가면
전면 창을 따라 쭉 늘어선 카페 공간이 펼쳐진다.

전면 창과 평행하게 카페 카운터가 있고,
그 뒤로 2층 전시관으로 가는 계단실이 있다.
카운터 뒤가 거울로 마감된 것이 포인트다.

전시 관람을 위해 카페 카운터 옆
전시 매표소에서 발권을 한다.

성인 8,000원의 관람료이고,
당일 카페 티켓을 소지하면
카페 음료 10% 할인된다.

기념품으로 써도 될 만큼 빳빳한 종이에
예쁘게 디자인된 실물 티켓이다.

1층 오아르 컬렉션 상설 전시를 먼저 보고
2층 기획 전시관으로 오르기로 한다.
상설 전시를 보려면 카페 카운터를 지나야 하는데,
카페 손님 동선과 겹쳐서 번잡하게 느껴졌다.
1층 상설 전시는 무료로 관람이 가능하다.

1층 전시장 뒤편은 고분이 반사되어
보이도록 전면 거울로 마감되었다.
카페 카운터 안쪽이 거울이 비추기 때문에
항상 깨끗하고 청결하게 유지해야 한다.
고분을 비춘다는 건축 콘셉트가 실현되었다고
보기엔 힘든게, 거울을 통해 비춰지는 풍경은
고분이 아닌, 카페의 번잡함이다.

카페 카운터를 지나면 안쪽으로 깊은
공간에 1층 상설 전시관이 보인다.

관장이 오랫동안 컬렉션해온 작품 중에서
엄선해서 대중에게 공개하는 자리라고 한다.

작품을 감상하다가 돌아 보면
카페공간 너머로 고분이 펼쳐진다.
심각한 전시가 아니기에 카페 분위기에
맞추어 가벼운 마음으로 전시를 감상했다.

창 밖으로 고분과 자연을 감상하는 것은 물론,
관광하는 사람들을 구경하는 재미도 있다.
그나저나 고분을 꼭대기까지 오르는 사람들이
많이 있던데... 유적 관리가 잘 되고 있는 건가?

본격적으로 개관전시를 관람하기 위해
2층 계단실로 향한다.

계단실 옆에 짐 보관함이 있어서 무거운 짐은
맡겨 두고 편하게 전시를 관람할 수 있다.
보관함 뒤편으로 엘리베이터가 있고,
더 안쪽으로 들어가면 화장실이 있다.

2층 계단실은 하얗게 마감되었고
좁고 긴 통로라서 계단을 오를수록 2층
전시 공간에 대한 기대감을 고취했다.

2층 개관 전시 '지구의 울림'을 소개하는
벽면 레터링이 보이기 시작한다.

문득 뒤를 돌아보니, 아마도 소장 작품으로
보이는 설치물이 있었다.
계단을 걸어서 내려오지 않으면 못 보고
지나칠만한 위치에 설치된 작품이다.

2층 전시장을 오르니 스태프가 전시 관람
동선을 안내해 주었다. 사진은 안내된 동선을
따라서 바라본 전시장 풍경이다.


2층 천장의 경사가 독특했다.
아마 루프탑 지붕 경사면을 그대로 살려
2층 천장을 마감했으리라 생각된다.
공간감은 풍부해졌지만, 이 경사면들이
전시 관람에는 큰 도움이 되지 않는다.
(하지만 난 전시에는 관심이 없잖아?)

과감하게 한쪽 천장면은 전면을
바리솔 조명으로 마감해서 흡사 천창의 자연 빛이
실내를 비추는 건가 싶은 분위기를 연출한다.
저기에 벌레가 들어가면 어떻게 처리해야 하지,
라는 쓸데 없는 걱정이 들었다.

전시장 안내 동선을 따라 돌고 돌아
고분 뷰 전면 창이 모습을 드러 낸다.

2층에서 바라본 고분의 풍경이 1층과는
또다른 매력을 자아낸다.
바라보는 높이가 달라진 탓도 있겠지만,
카페와 미술관이라는 프로그램이 주는 차이가
창밖 고분 풍경의 분위기를 크게 좌우했다.


뭐야, 이곳을 찾은 관람객 대부분 나처럼
작품 보다는 고분 뷰에 더 관심이 있나 보다.
전시장 전체를 압도하는 전면 창 고분 뷰는
어쩌면 이곳에 걸린 작품의 감상을 오히려
방해하는 것은 아닐까? 라는 의문이 든다.

오히려 의도적으로 2층의 뷰는 과감히 차단하고
1층과 3층의 고분 뷰의 강한 대비를 극대화하는
시퀀스 장치로 활용했으면 어땠을까? 생각해봤다.
하지만 그러기에 이 뷰는 너무 대단하잖아.


오랫동안 2층 전시관 창가에 앉아서
사진을 찍고 고분을 감상했다.
기억에 오래 남을 경험이다.

2층 전시 관람을 마치고 3층으로 오른다.


천장 없이 하늘을 향해 곧장 뚫린 계단실
좁고 긴 계단실은 푸른 하늘과 보색을 이루는
주황빛 목재으로 마감돼 더 극적으로 느껴진다.

두근두근 기대감에 올라 마주한 뷰는
우와! 라는 느낌표가 아닌, 엥? 이라는 물음표.
옆 건물과 간판이 가장 먼저 눈에 들어 온다.

고개를 돌려 보면 그제서야
우와! 하고 감탄사를 내뱉는다.

1층과 2층에서 창 밖으로 보았던 고분의
전체 모습을 육안으로 막힘 없이 펼쳐진다.
건축물의 각지고 차가운 감각과 대조를 이루는
둥글고 따듯한 고분의 분위기가 한껏 고조된다.

그리고 멀리에는 한옥마을의 지붕
풍경과 더 멀리 산 능선의 풍경이 한폭의
그림처럼 눈길을 사로 잡는다.

한편, 거슬리는 자연광에 눈살을 찌푸르게 되는데 ...
범인은 지붕 마감재에 반사된 햇빛이다.
진입로에서 본 그 철제 마감재인데, 아마도
그 의도는 따뜻한 고분의 분위기를 드라마틱하게
고취시키기 위해 강한 대비감을 주는 것이리라.
하지만 루프탑까지 이를 가져 온 탓에
루프탑 이용객의 눈살을 찌푸리게 만든다.

지붕에 반사된 자연광 때문에 탁 트인
360도 파노라마 뷰를 기분 좋게 즐기진 못했다.

그리고 지붕을 따라 계단을 만들었는데,
의도가 뭐였을까? 생각해 보게 된다.
평평하게 옥상 정원을 만들지 않고,
경사를 두고 계단을 만든 것은 이곳에
앉아서 고분을 관람하라는 것일텐데,
계단의 방향은 고분 방면이 아닌 옆 건물 방향.
알쏭달쏭한 수수께끼 처럼 궁금증만 가득한
루프탑 관람을 마치고 다시 내려간다.


계단실 폭이 비좁아서 내려오는 사람이 있으면
올라오는 사람은 기다렸다가 올라간다.

지하 1층 전시를 이어서 관람하기 위해
엘리베이터를 타고 내려간다.
지하 1층으로 가는 계단 동선은 없었던 것으로 기억한다.

지하 1층에는 10평 남짓한 공간에
설치 작품이 전시되어 있었다.

지하 1층은 주로 사무관리 공간인데,
굳이 전시공간은 작게라도 만들어 둔
취지가 무엇일까?
전시 관람 동선은 꼬이고 기대보다 작은
전시 공간에 다소 실망감을 느끼게 된다.

엘리베이터를 타고 다시 1층으로 올라와
카페에서 잠시 쉬었다가 가기로 한다.


근데 여기 카페 맛집이다.
디저트도 맛있고 음료도 맛있다.

카페 한켠엔 전시 기념품을 판매하고 있다.
기념품이 필요하다면 이곳을 들리자.

미술관을 나와 대릉원 일원을 걸으며
건축물을 좀 더 감상하기로 한다.
박공지붕이 주변 기와지붕 집들과 형태적으로
연속성을 주며 풍경에 자연스럽게 녹아든다.

차가운 철제 재료와 전면 유리로 과감하게 마감해
따뜻한 대릉원 일원의 자연 고분과 대비를 이룬다.
적당한 긴장감으로 건축물은 세련되게 보이고
대릉원의 자연은 더 따뜻하게 느껴진다.

건축 외관을 한 바퀴 돌면서 생각해 보니,
이 건축물은 어쩌면 내부에서의 경험보다
외부에서 바라보는 오브제로서의 건축물에
더욱 신경을 쓴 것 같은 느낌이 들었다.

미술관의 전면 창은 밖에서 보았을 때 고분이
반사되어 보여서 대릉원 일원의 자연과 미술관
건축물이 연속감 있게 느껴지도록 설계되었다.

이곳을 찾는다면, 내부만 둘러보고 떠나지 마시고,
대릉원 일원을 걸으며 건축물을 감상하길 바랍니다.